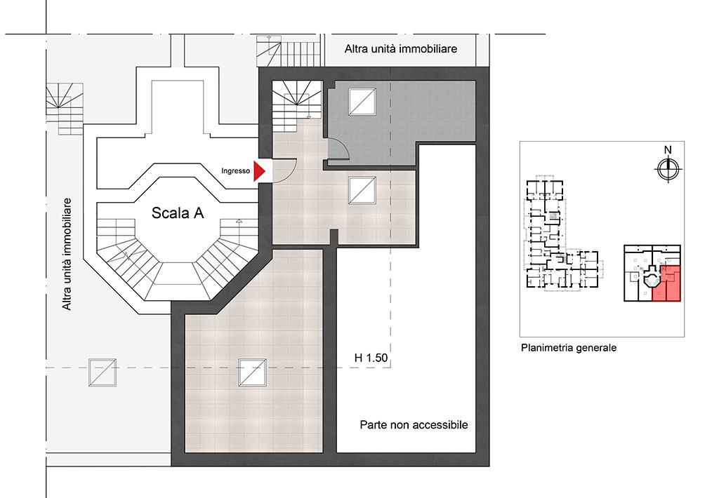
Appartamento W7
Scala “C” – Piano Secondo+Sottotetto
124 Mq. comm.li
Terrazzo mq. 51
Sottotetto mq. 64
Camera
Bagno
1 Cantina
PER INFO
Palazzina C – Scala C – Appartamento W7
Gli eventuali dati personali forniti saranno acquisiti dal Titolare del trattamento che li tratterà, secondo la legge sulla privacy, al solo scopo di rispondere alla richiesta di contatto. I dati non saranno ceduti a terzi al di fuori del titolare del trattamento e sua organizzazione. L’accesso, modifica e cancellazione potrà essere richiesta in ogni momento inviando una comunicazione a info@residenzafigino.it
Proprietà
Impresa Costruttrice
Commercializzazione
RICHIEDI INFO
CONTATTI
Location
Via Ponte del Giuscano, 10
FIGINO
Numero Verde
Chiama
800.949.188
Scrivi a
info@residenzafigino.it
© Tutti i diritti riservati 2024
Unire srl
P.IVA 10498420966
Piazza San Sepolcro 2
20123 Milano
CONTATTI AGENZIA:
Casa Loserimm
Via Filippo Meda, 53
Rho (MI)

